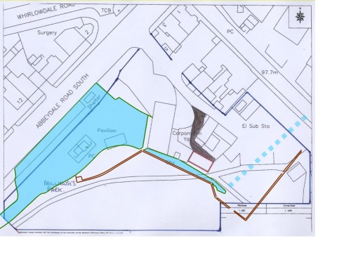
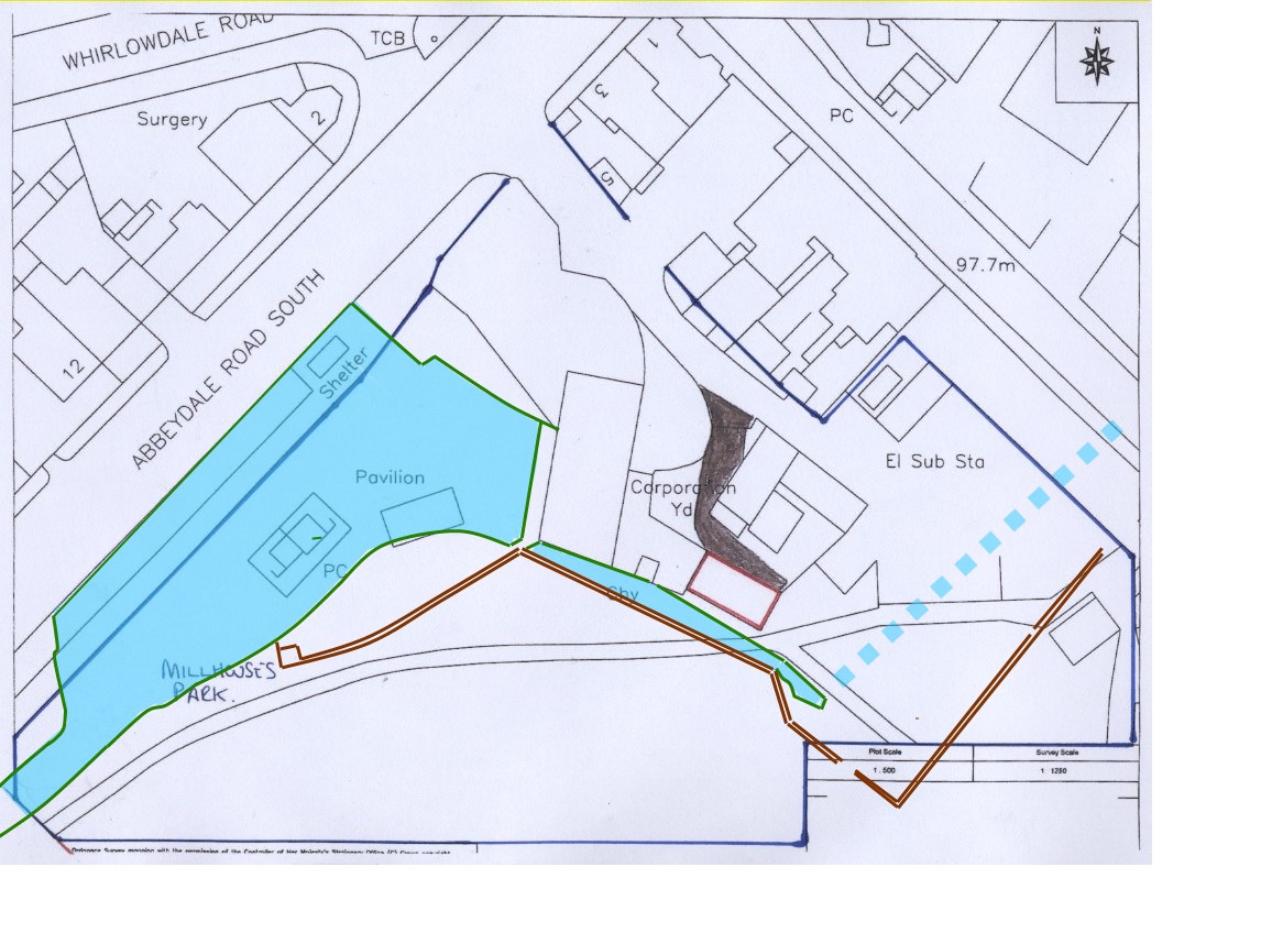
Official Documents – This is the page to visit to see all our Official Documentation for the Mill Buildings.
The Mill and its Future – check out the plans for our mill building!
The Story of the Mill – The complete history of the Mill – come back regularly to catch the latest episode!
1841 Census – Want to see who lived in Millhouses in 1841?
1851 Census – A Friends of Millhouses Park Followup from John Hill-Wilson!
1870 Map – See what Millhouses looked like c 1870!

